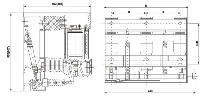
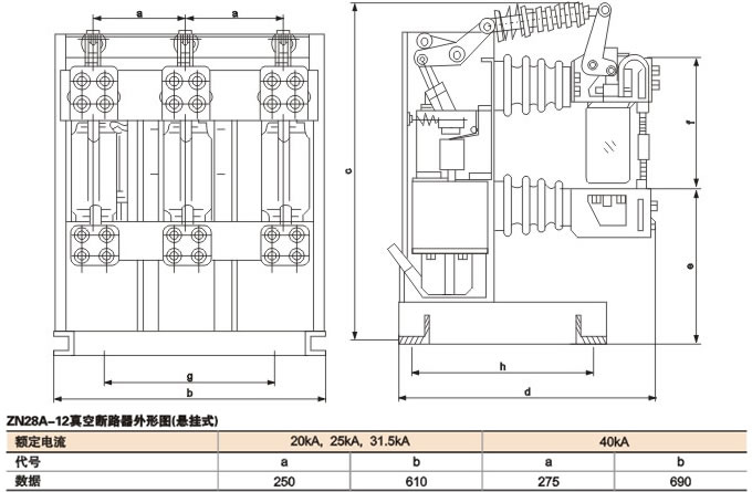
ZN28A-12、ZN28-12G系列户内高压真空断路器
◎概述|
序号
|
项目
|
单位
|
参数
|
||||
|
额定电压
|
20KA
|
25KA
|
31.5KA
|
40KA
|
|||
|
1
|
额定电压
|
KV
|
|
||||
|
2
|
额定电流(A)
|
A
|
|
|
|
1600
2500 3150 |
|
|
3
|
额定短路开断电流
|
KA
|
20
|
25
|
31.5
|
40
|
|
|
4
|
额定短路开合电流(峰值)
|
KA
|
50
|
63
|
80
|
100
|
|
|
5
|
额定峰值耐受电流
|
KA
|
50
|
63
|
80
|
100
|
|
|
6
|
4s额定短时耐受电流
|
KV
|
20
|
25
|
31.5
|
40
|
|
|
7
|
额定绝
缘水平 |
工频耐压(额定开断开后) |
KV
|
42(断口48)
|
|||
| 冲击耐压(额定开断开后) |
75(断口85)
|
||||||
|
8
|
额定操作顺序
|
|
分…0.3s…合分…180s…合分
|
||||
|
9
|
机械寿命
|
次
|
10000
|
||||
|
10
|
额定短路开断电流开断次数
|
次
|
30
|
20
|
|
|
11
|
操动机构额定合闸电压(直流)
|
V
|
110 220
|
220
|
|
|
12
|
操动机构额定合闸电流(直流)
|
A
|
71
|
128
|
|
|
13
|
操动机构额定分闸电压(直流)
|
V
|
110 220
|
||
|
14
|
操动机构额定分闸电流(直流)
|
A
|
3.0,1.5
|
||
|
15
|
触头开距
|
mm
|
11±1
|
||
|
16
|
超行程(触头弹簧压缩长度)
|
mm
|
4±1
|
||
|
17
|
三相分/合闸不同期性
|
ms
|
≤2
|
||
|
18
|
触头合闸弹跳时间
|
ms
|
≤2
|
||
|
19
|
平均分闸速度(刚分6mm高)
|
m/s
|
1.2±0.3
|
||
|
20
|
平均合闸速度
|
m/s
|
s0.6±0.2
|
||
|
21
|
分闸 时间
|
操作电压下 |
S
|
≤0.06
|
|
| 操作电压下 |
≤0.08
|
||||
|
22
|
合闸时间
|
S
|
≤0.2
|
||
|
23
|
各相主回路电阻
|
μΩ
|
≤40
|
≤20
|
|
|
24
|
动静触头允许磨损累积厚度
|
mm
|
3
|
||
|
25
|
油缓冲器缓冲行程
|
mm
|
10
|
||
