产品中心

PRODUCT

产品中心

GN22-12(C)型隔离开关

如果您有任何问题可以联系我们!
联系我们

电话:13362797389   15325038558

扫一扫,加我为朋友
  • 详细信息
详细信息
GN22-12(C)型隔离开关
◎概述

GN22-12(C)型隔离开关适用于三相交流50Hz,额定电压12KV的户内装置。供高压设备的有电压 而列负荷载的情况下接通,切断或转换线路之用。

◎型号说明
GN22-12(C)型隔离开关
◎使用环境条件

海拔:不超过1000m;

周围空气温度:-30 +40;

周围环境相对湿度:日平均不大于95%;

月平均值不大于90%。地震强度不超过8级

安全场所:没有火灾,易燃,易爆,严重污秽,化学腐蚀及剧烈振动场所。

◎主要技术参数
项目
单位
数据
额定电压
KV
12
额定功率
Hz
50

额定电流

A
1600 200
2500 3150
额定短路耐受电流
KA
40
50
额定峰值耐受电流
KA
100
125
额定短时持续时间
S
4
额定绝缘水平
工频耐受电压
KV
极间,极对地42断开口49
雷电冲击耐受电压(峰值)
KV
极间,极对地75断开口85
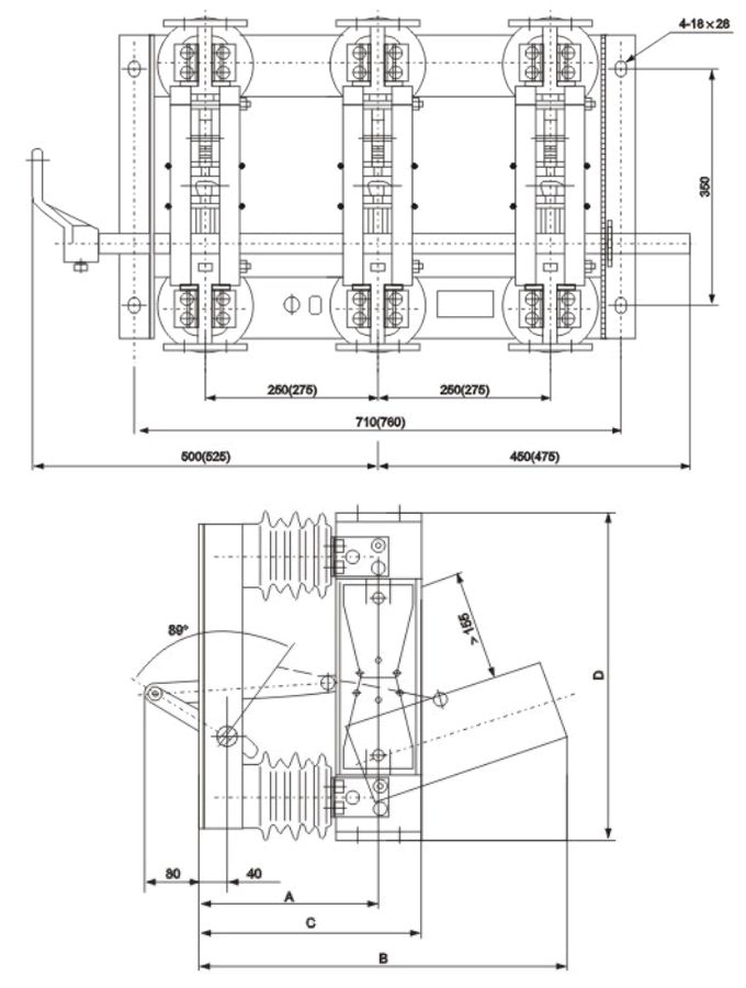
◎外形安装尺寸
型号
A
B
C
D
E
GN22-12/1600-2000
255
305
527
490
50
GN22-12/2500-3150
262
325
538
494
60
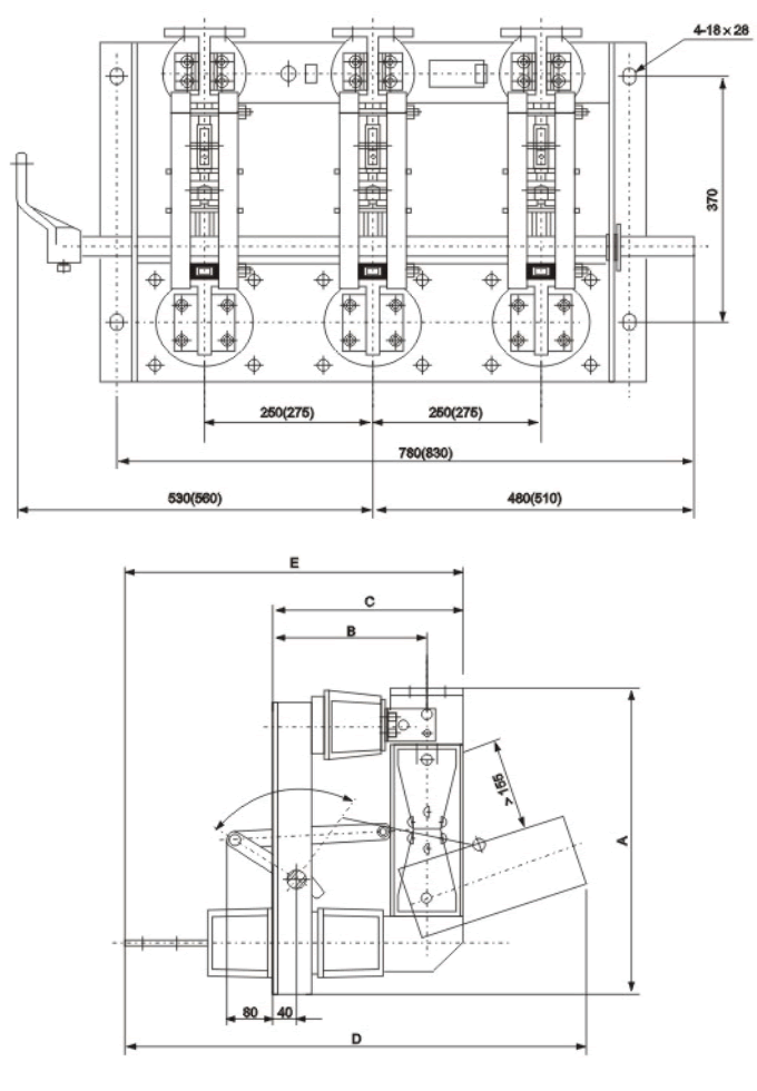
型号
A
B
C
D
E
GN22-12C/1600-2000
537
255
305
807
580
GN22-12C/2500-3150
539
267.5
330
880
630
GN22-12(C)型隔离开关
GN22-12)型隔离开关
GN22-12(C)型隔离开关
GN22-12(C)型隔离开关
相关产品
联系我们
扫一扫,加我为朋友
© 上海福熔电气有限公司   沪ICP备16041022号-1   XML   网站地图   网站制作维护:传信网络

在线
QQ

点击这里给我发消息 476635413
在线QQ

微信
咨询

扫一扫,加我为朋友
扫一扫,加我为朋友

服务
热线

13362797389

15325038558
服务热线

客服
邮箱

476635413@qq.com
客服邮箱